Otevřít menu
Vyberte si svůj domovzačněte výběrem budovy na obrázku
"
1.NP
3+kk (2 x volný)
"
2.NP
"
3.NP
4+kk - mezonet (7 x volný)
Sever

BYDLENÍ U PARKU - BYTY BOROVSKÉHO -  PRODEJ ZAHÁJEN!

Informační schůzku je možné naplánovat v prodejní kanceláři ve Slaném nebo v sídle naší společnosti v Praze

Byty v nabídce

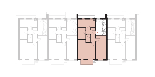
Byt B.1.3

3+kk62,7 m2dům B1.NP
B.1.3
B.1.3 Pozice bytu na patře B.1.3 Pozice patra v budově
01 chodba 5,7 m2
02 pokoj 10,1 m2
03 koupelna 5,4 m2
04 wc 1,8 m2
05 obývací pokoj + kuchyňský kout 20,2 m2
06 ložnice 15,8 m2
Užitná plocha 59,0 m2
Podlahová plocha 62,7 m2
07 terasa 4,5 m2

Plochy jednotlivých místností jsou pouze orientační.
Vyobrazené zařízení v plánech bytů (nábytek, kuch. linka, spotřebiče atd.) není součástí dodávky.
Rozsah dodávky je specifikován ve standardu a finálně pak ve smlouvě.

Napište nám Napište nám